АВТОРСКИЙ ПРОЕКТ СЕРГЕЯ ПЕТРУШИ
Проект для тех, кто считает деньги, но не хочет жить в сарае
2 РАЗМЕРА
Колхозный дом 105 и Колхозный дом Мини
2 ТЕХНОЛОГИИ
На выбор: МХМ или СИП
Нормальный частный дом для ненормальных строительных цен
Нормальный частный дом
для ненормальных строительных цен
Домокомплект, в котором сэкономили не на прочности и тепле, а на понтах, лишних метрах и решениях «чтобы было как у всех».
КОЛХОЗНЫЙ ДОМ
Подскажем по ипотечным программам, расскажем про эскроу и поможем понять реальную стоимость строительства.
Не нужно разбираться в ипотеке самостоятельно
Полноценный дом для жизни за городом без лишних решений и переплат
КОЛХОЗНЫЙ ДОМ 105
ХАРАКТЕРИСТИКИ ПРОЕКТА:
ОСОБЕННОСТИ ПРОЕКТА:
площадь дома
105,81 м²
ЖБ / винтовые сваи
Фундамент
2-кам. стеклопакет
Окна и двери
2 технологии
МХМ / СИП
габариты
9×11 м
2 планировки
на выбор
Можно адаптировать
с/у + котельная
Терраса ~15 м²
кладовая
Кухня-гостиная
*Точная стоимость зависит от региона и выбранной технологии.
СИП
СПб / Москва
от 4 700 000 ₽
СПб / Москва
от 6 050 000 ₽
МХМ
Ориентир по стоимости
Вы получаете готовое решение:
планировка + технология + расчет стоимости
К-Дом 105 — проект для постоянной жизни за городом. Здесь есть отдельные спальни, кухня-гостиная, терраса и возможность выбрать технологию под участок, бюджет и сценарий строительства.

Планировки продуманы под реальный сценарий жизни: разделены зоны, есть места хранения и удобная логика пространства, а в одной из планировок предусмотрен кабинет.
ХАРАКТЕРИСТИКИ ПРОЕКТА:
ОСОБЕННОСТИ ПРОЕКТА:
площадь дома
105,81 м²
ЖБ / винтовые сваи
Фундамент
2-кам. стеклопакет
Окна и двери
2 технологии
МХМ / СИП
габариты
9×11 м
2 планировки
на выбор
Можно адаптировать
с/у + котельная
Терраса ~15 м²
кладовая
Кухня-гостиная
*Точная стоимость зависит от региона и выбранной технологии.
СИП
СПб / Москва
от 4 700 000 ₽
СПб / Москва
от 6 050 000 ₽
МХМ
Ориентир по стоимости
Вы получаете готовое решение:
планировка + технология + расчет стоимости
К-Дом 105 — проект для постоянной жизни за городом. Здесь есть отдельные спальни, кухня-гостиная, терраса и возможность выбрать технологию под участок, бюджет и сценарий строительства.

Планировки продуманы под реальный сценарий жизни: разделены зоны, есть места хранения и удобная логика пространства, а в одной из планировок предусмотрен кабинет.
Два варианта планировки: стандартная и зеркальная версия для удобной посадки дома на участке.
ПЛАНИРОВКИ К-ДОМ 105
ПЛАНИРОВКА №1
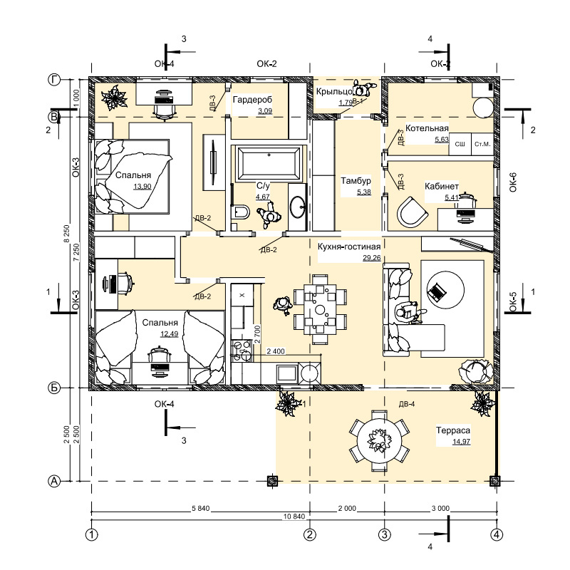
Классический семейный вариант: три спальни, кухня-гостиная, кладовая, санузел и терраса. Подходит для постоянного проживания, когда важно разделить общую зону и личные комнаты.
Кухня-гостиная: 27,46 м²
Терраса: 14,89 м²
С/у: 5,55 м²
Кладовая: 1,93 м²
Спальня 3: 9,35 м²
Спальня 2: 14,42 м²
Спальня 1: 13,22 м²
Количество комнат: 3
ПЛАНИРОВКА №2
Классический семейный вариант: три спальни, кухня-гостиная, кладовая, санузел и терраса. Подходит для постоянного проживания, когда важно разделить общую зону и личные комнаты.
Кухня-гостиная: 27,46 м²
Терраса: 14,89 м²
С/у: 5,55 м²
Кладовая: 1,93 м²
Спальня 3: 9,35 м²
Спальня 2: 14,42 м²
Спальня 1: 13,22 м²
Количество комнат: 3
ХАРАКТЕРИСТИКИ ПРОЕКТА:
ОСОБЕННОСТИ ПРОЕКТА:
площадь дома
105,81 м²
ЖБ / винтовые сваи
Фундамент
2-кам. стеклопакет
Окна и двери
2 технологии
МХМ / СИП
габариты
9×11 м
2 планировки
на выбор
Можно адаптировать
с/у + котельная
Терраса ~15 м²
кладовая
Кухня-гостиная
Вы получаете готовое решение:
планировка + технология + расчет стоимости
Увеличенная версия Колхозного дома: больше общей зоны, сауна, котельная и большая терраса для постоянной жизни за городом
КОЛХОЗНЫЙ ДОМ УВЕЛИЧЕННЫЙ
ХАРАКТЕРИСТИКИ ПРОЕКТА:
ОСОБЕННОСТИ ПРОЕКТА:
площадь дома
129,34 м²
ЖБ / винтовые сваи
Фундамент
2-кам. стеклопакет
Окна и двери
2 технологии
МХМ / СИП
габариты
13×9 м
2 планировки
на выбор
Можно адаптировать
с/у + котельная
терраса ~39 м²
сауна
Кухня-гостиная
*Точная стоимость зависит от региона и выбранной технологии.
СИП
СПб / Москва
от 5 600 000 ₽
СПб / Москва
от 7 200 000 ₽
МХМ
Ориентир по стоимости
Вы получаете готовое решение:
планировка + технология + расчет стоимости
К-Дом 129 — увеличенная версия проекта для тех, кому нужен полноценный загородный дом для постоянной жизни.

Здесь уже больше общей площади, просторная кухня-гостиная, две отдельные спальни, детская, сауна, котельная и большая терраса для отдыха.
ХАРАКТЕРИСТИКИ ПРОЕКТА:
ОСОБЕННОСТИ ПРОЕКТА:
площадь дома
129,34 м²
ЖБ / винтовые сваи
Фундамент
2-кам. стеклопакет
Окна и двери
2 технологии
МХМ / СИП
габариты
13×9 м
2 планировки
на выбор
Можно адаптировать
с/у + котельная
терраса ~39 м²
сауна
Кухня-гостиная
*Точная стоимость зависит от региона и выбранной технологии.
СИП
СПб / Москва
от 5 600 000 ₽
СПб / Москва
от 7 200 000 ₽
МХМ
Ориентир по стоимости
Вы получаете готовое решение:
планировка + технология + расчет стоимости
К-Дом 129 — увеличенная версия проекта для тех, кому нужен полноценный загородный дом для постоянной жизни.

Здесь уже больше общей площади, просторная кухня-гостиная, две отдельные спальни, детская, сауна, котельная и большая терраса для отдыха.
Два варианта планировки: стандартная и зеркальная версия для удобной посадки дома на участке.
ПЛАНИРОВКИ К-ДОМ УВЕЛИЧЕННЫЙ
ПЛАНИРОВКА №1
Увеличенная семейная планировка: просторная кухня-гостиная, три отдельные комнаты, сауна, котельная и большая терраса.
Кухня-гостиная: 28,58 м²
Терраса: 39,32 м²
Котельная: 2,70 м²
Кладовая: 1,79 м²
С/у: 4,04 м²
Сауна: 3,17 м²
Детская: 10,15 м²
Спальня 2: 12,90 м²
Спальня 1: 12,12 м²
Количество комнат: 3
ПЛАНИРОВКА №2
Увеличенная семейная планировка: просторная кухня-гостиная, три отдельные комнаты, сауна, котельная и большая терраса.
Кухня-гостиная: 28,58 м²
Терраса: 39,32 м²
Котельная: 2,70 м²
Кладовая: 1,79 м²
С/у: 4,04 м²
Сауна: 3,17 м²
Детская: 10,15 м²
Спальня 2: 12,90 м²
Спальня 1: 12,12 м²
Количество комнат: 3
ХАРАКТЕРИСТИКИ ПРОЕКТА:
ОСОБЕННОСТИ ПРОЕКТА:
площадь дома
129,34 м²
ЖБ / винтовые сваи
Фундамент
2-кам. стеклопакет
Окна и двери
2 технологии
МХМ / СИП
габариты
13×9 м
2 планировки
на выбор
Можно адаптировать
с/у + котельная
терраса ~39 м²
сауна
Кухня-гостиная
Вы получаете готовое решение:
планировка + технология + расчет стоимости
Компактная версия Колхозного дома для тех, кому нужен нормальный дом без лишней площади
КОЛХОЗНЫЙ ДОМ МИНИ
ХАРАКТЕРИСТИКИ ПРОЕКТА:
ОСОБЕННОСТИ ПРОЕКТА:
площадь дома
57 м²
ЖБ / винтовые сваи
Фундамент
2-кам. стеклопакет
Окна и двери
2 технологии
МХМ / СИП
габариты
7,6×7,6 м
4 планировки
на выбор
Можно адаптировать
Санузел
2 спальни
Прихожая
Кухня-гостиная
*Точная стоимость зависит от региона и выбранной технологии.
СИП
СПб / Москва
от 1 073 611 ₽
СПб / Москва
от 1 453 290 ₽
МХМ
Ориентир по стоимости
Вы получаете готовое решение:
планировка + технология + расчет стоимости
Колхозный дом Мини — это компактный формат для пары, небольшой семьи, дачного сценария или первого шага в загородную жизнь.

Здесь меньше метров, но остается главное: две спальни, кухня-гостиная, санузел и понятная логика планировки.
ХАРАКТЕРИСТИКИ ПРОЕКТА:
ОСОБЕННОСТИ ПРОЕКТА:
площадь дома
57 м²
ЖБ / винтовые сваи
Фундамент
2-кам. стеклопакет
Окна и двери
2 технологии
МХМ / СИП
габариты
7,6×7,6 м
4 планировки
на выбор
Можно адаптировать
Санузел
2 спальни
Прихожая
Кухня-гостиная
*Точная стоимость зависит от региона и выбранной технологии.
СИП
СПб / Москва
от 1 073 611 ₽
СПб / Москва
от 1 453 290 ₽
МХМ
Ориентир по стоимости
Вы получаете готовое решение:
планировка + технология + расчет стоимости
Колхозный дом Мини — это компактный формат для пары, небольшой семьи, дачного сценария или первого шага в загородную жизнь.

Здесь меньше метров, но остается главное: две спальни, кухня-гостиная, санузел и понятная логика планировки.
Четыре варианта планировки: две разные конфигурации дома и их зеркальные версии под разные участки и сценарии жизни.
ПЛАНИРОВКИ К-ДОМ МИНИ
ПЛАНИРОВКА №1
Две спальни, кухня-гостиная, санузел и прихожая. Подходит для пары, небольшой семьи или дачного сценария.
Кухня-гостиная: 18,66 м²
Прихожая: 2,85 м²
Санузел: 3,08 м²
Спальня 2: 12,42 м²
Спальня 1: 12,42 м²
Количество комнат: 2
ПЛАНИРОВКА №2
Две спальни, кухня-гостиная, санузел и прихожая. Подходит для пары, небольшой семьи или дачного сценария.
Кухня-гостиная: 18,66 м²
Прихожая: 2,85 м²
Санузел: 3,08 м²
Спальня 2: 12,42 м²
Спальня 1: 12,42 м²
Количество комнат: 2
ПЛАНИРОВКА №3
Вариант с увеличенной кухней-гостиной и гибким использованием комнат.
Кухня-гостиная: 20,58 м²
Прихожая: 4,29 м²
Санузел: 4,55 м²
Спальня 2: 8,10 м²
Спальня 1: 11,69 м²
Количество комнат: 2
ПЛАНИРОВКА №4
Вариант с увеличенной кухней-гостиной и гибким использованием комнат.
Кухня-гостиная: 20,58 м²
Прихожая: 4,29 м²
Санузел: 4,55 м²
Спальня 2: 8,10 м²
Спальня 1: 11,69 м²
Количество комнат: 2
ХАРАКТЕРИСТИКИ ПРОЕКТА:
ОСОБЕННОСТИ ПРОЕКТА:
площадь дома
57 м²
ЖБ / винтовые сваи
Фундамент
2-кам. стеклопакет
Окна и двери
2 технологии
МХМ / СИП
габариты
7,6×7,6 м
4 планировки
на выбор
Можно адаптировать
Санузел
2 спальни
Прихожая
Кухня-гостиная
Вы получаете готовое решение:
планировка + технология + расчет стоимости
Сравните технологии строительства и выберите оптимальный вариант под свои задачи.
МХМ или СИП?
ЧТО ТАКОЕ СИП-ПАНЕЛЬ
СИП-панель представляет собой две плиты, между которыми находится теплоизоляционный материал. Ее использование обеспечивает высокую надежность и долговечность дома, а также позволяет снизить бюджет и упростить строительный процесс.
СИП-панель является несущей конструкцией, способной выдерживать значительные нагрузки и превосходит по этому параметру каркасные технологии.
Прочность
Уменьшение теплопотерь позволяет экономить на отоплении — дом удерживает тепло зимой и сохраняет прохладу летом.
Отличная теплоизоляция
Панели легче традиционных материалов, что упрощает транспортировку и монтаж.
Небольшой вес
Для сборки не требуется тяжелая техника, а сам процесс занимает минимальное время.
Простота монтажа
Благодаря малому весу и простоте монтажа дом можно возвести в короткие сроки.
Быстрое строительство
В среднем расходы на отопление могут быть ниже до 4 раз по сравнению с традиционными решениями.
Энергоэффективность
ЧТО ТАКОЕ МХМ (MASSIV-HOLZ-MAUER)
Материал представляет собой монолитную плиту из плотно спрессованных досок, соединенных друг с другом алюминиевыми крепительными элементами. Технология позволяет получить прочную, стабильную и долговечную конструкцию, подходящую для постоянного проживания.
Материал полностью состоит из древесины, что обеспечивает безопасность и комфорт проживания.
Экологичность
Конструкция выдерживает значительные нагрузки и служит долгие годы.
Прочность и долговечность
Дом защищает от внешнего шума и создает комфортную среду внутри.
Хорошая шумоизоляция
В отличие от классического бруса, панели не дают усадки и сохраняют геометрию.
Стабильность конструкции
Дерево сохраняет тепло и поддерживает комфортный микроклимат.
Теплоэффективность
За счет плотности материала снижается скорость распространения огня.
Пожарная безопасность
Смотрите, как строится «Колхозный дом»: технологии, этапы, решения и честные разборы
Реальные видео
со стройки и жизни проекта
СИП в 2025: что изменилось и стоит ли строить
Репортаж со стройки: как идет процесс
Разбор проекта «Колхозный дом»
Как делали перекрытия для проекта
Больше видео — на моем YouTube-канале
СИП в 2025: что изменилось и стоит ли строить
Репортаж со стройки: как идет процесс
Как делали перекрытия для проекта
Разбор проекта «Колхозный дом»
Вопросы, которые лучше задать до стройки
Обе технологии доступны для К-Дом 105 и Колхозного дома Мини.

МХМ чаще выбирают, когда хочется более массивную деревянную конструкцию и ощущение основательного дома. СИП выбирают, когда важны скорость сборки, энергоэффективность и более доступный вход в строительство.

Если коротко: МХМ - про массив и основательность, СИП - про скорость и рациональный бюджет. Точный выбор лучше делать под участок, регион и задачу.
Обе технологии доступны для К-Дом 105 и Колхозного дома Мини.

МХМ чаще выбирают, когда хочется более массивную деревянную конструкцию и ощущение основательного дома. СИП выбирают, когда важны скорость сборки, энергоэффективность и более доступный вход в строительство.

Если коротко: МХМ — про массив и основательность, СИП — про скорость и рациональный бюджет. Точный выбор лучше делать под участок, регион и задачу.

БЕСПЛАТНАЯ КОНСУЛЬТАЦИЯ СПЕЦИАЛИСТА

ОСТАЛИСЬ ВОПРОСЫ?

  • Оставьте заявку
Подберем проект, рассчитаем стоимость и подскажем оптимальное решение под ваш участок и бюджет.
Мы используем cookies, чтобы сайт работал стабильно и был удобен для вас. Продолжая пользоваться сайтом, вы соглашаетесь с их использованием. Подробнее — в Политике конфиденциальности.
Принять все
Made on
Tilda